Eiendomsutvikling og næringseiendom

Hyblifisering i nybygg – leiligheter med utleiedel – ny dom fra Borgarting lagmannsrett

Publisert
30. januar 2026
Borgarting lagmannsrett har nylig avsagt en potensielt viktig dom om hvorvidt leiligheter med integrerte utleiedeler i nybygg skal regnes som én eller to boenheter. Dommen gir føringer for hvordan byggetillatelser skal tolkes og hvilke krav som utløses når utleiedeler er planlagt brukt som selvstendige enheter.
Trenger du bistand i en lignende sak?
Fagområde(r): 
Eiendomsutvikling og næringseiendom
Kontakt Erik Hauge Danielsen

1.         Innledning


Borgarting lagmannsrett avsa 7. januar 2026 (LB-2025-139506) dom i en sak som gjaldt gyldigheten av vedtak om retting og tvangsmulkt for ulovlige boenheter etter plan- og bygningsloven.

Saken gjaldt et boligprosjekt hvor kommunen hadde gitt rammetillatelse til etablering av 265 boenheter. Kommunen og Statsforvalteren konkluderte med at utbygger i tillegg hadde etablert 56 selvstendige boenheter uten nødvendig tillatelse. Utbygger ble dermed pålagt å fjerne de 56 boenhetene, slik at disse ikke kunne brukes og fremstå som selvstendige boenheter. Utbygger var uenig i at det var etablert selvstendige boenheter utover de 265 boenhetene som rammetillatelsen omfattet, og dermed at de aktuelle utleiedelene ikke skulle anses som 56 selvstendige boenheter.

Partene var enige om at de aktuelle leilighetene var godkjent av kommunen som én boenhet. Spørsmålet var derfor om leilighetene slik de var oppført utgjorde én eller to boenheter.

Tingretten fant at Statsforvalterens vedtak var ugyldig. Lagmannsretten konkluderte med det motsatte, og staten ved Kommunal- og distriktsdepartementet ble frifunnet og tilkjent sakskostnader for tingretten og lagmannsretten. 

 

2.         Rettslige utgangspunkter og tolkning av rammetillatelsen


Lagmannsretten påpekte at vurderingen av om bebyggelsen er i tråd med rammetillatelsen, avhenger av en tolkning av tillatelsen med utgangspunkt i vedtakets ordlyd og søknadsdokumentene. Lagmannsretten la til grunn at feil og uklarheter ved søknaden er søkers risiko.

Lagmannsretten viste til at en boenhet i byggteknisk forskrift (TEK17) § 1-3 bokstav a) defineres som en «bruksenhet som har alle funksjoner og som skal brukes til boligformål». Deretter viste lagmannsretten til kriteriene som oppstilles i byggesaksforskriften (SAK10) § 2-2 bokstav a) til c), som fastsetter søknadsplikt for oppdeling av boenhet i eksisterende bolig når enheten
  • har alle funksjoner for bolig, slik som stue, kjøkken, soveplass, bad og toalett,
  • har egen inngang, og
  • er fysisk adskilt fra øvrige enheter.
Lagmannsretten fant at disse kriteriene var relevant å vektlegge «også ved oppføring av nye boliger».

Etter en gjennomgang av bakgrunnen for bestemmelsen i SAK10 og flere departementsuttalelser, la lagmannsretten til grunn at spørsmålet om en leilighet med en utleiedel i et nybygg består av én eller to boenheter må besvares ut fra en konkret helhetsvurdering. Utgangspunktet for vurderingen er definisjonen i TEK17, og kriteriene i SAK10 er relevante momenter. Men også andre momenter som «hensynet til omgåelse og formålsbetraktninger» kan få betydning. Lagmannsretten viste til at forvaltningspraksis kan være relevant å vektlegge, men at det ofte er krevende å klarlegge hva praksisen er.

Ved tolkningen av rammetillatelsen ble det lagt til grunn at søknaden ikke inneholder «formuleringer» som beskriver at de 56 leilighetene består av en hoveddel og en mindre del som kan benyttes som separat uteleieenhet eller hybel.

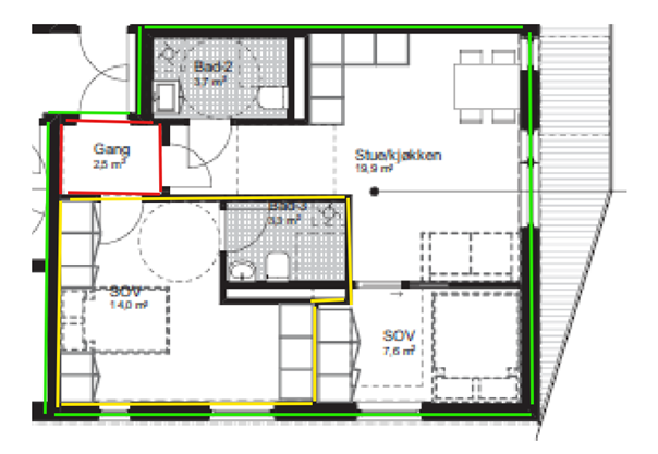
Utbygger mente samtidig at dette fremgår av plantegningene, hvor alle hovedfunksjoner for en boenhet utover kjøkken var beskrevet i hyblene – i form av oppholds-/soverom, bad og toalett:
 

Plantegning hentet fra dommen, med egne markeringer: utleiedel/hybel markert med gult, felles gang med hoveddelen markert med rødt, godkjent leilighet (én boenhet) markert med grønt.

Lagmannsretten påpekte at plantegningen kan tyde på at det i hvert fall legges til rette for at den mindre delen av leilighetene kan benyttes som en separat utleieenhet.

Samtidig kunne det «enkelt» ha vært skrevet hybel på plantegningene, eller på annen måte gitt uttrykk for at den siste hovedfunksjonen (kjøkken) kunne etableres.

Det var heller ikke i de øvrige søknadsdokumentene sagt noe om at de aktuelle delene av de 56 leilighetene var ment som hybel for utleie. Manglende opplysninger om det, medførte at utbygger ikke kunne ha noen berettigede forventninger om at det ble lagt til grunn som en forutsetning for rammetillatelsen.

Det var dermed for kommunen ikke «synbart» at det ble søkt om å oppføre leiligheter med integrerte hybler med eget kjøkken. Da hadde kommunen heller ikke noen klar oppfordring til å vurdere om hybeldelen av leiligheten utgjorde egne boenheter.
 

3.         Utgjør leilighetene med utleiedel én eller to boenheter?


Lagmannsretten fant at utleiedelene i utgangspunktet oppfylte alle kravene til en boenhet som oppstilles i SAK10 § 2-2. Samtidig bemerket lagmannsretten at inngangene til hoveddelen og hybeldelen var gjennom en felles gang (rød markering i plantegningen over) som var adskilt fra fellesarealene som er tilgjengelig for andre boliger i bygningen. Dette kunne tilsi at leiligheten utgjorde én boenhet.

Men i helhetsvurderingen lagmannsretten foretok, var det også relevant å se hen til formålsbetraktninger og omgåelseshensyn.

Et formål bak SAK10 § 2-2 er å gi fleksibilitet og tilrettelegging for utleie. Lagmannsretten var enig i at godkjenning av leilighetene som én boenhet var egnet til å gi tilgang på utleieenheter og fleksibilitet gjennom ulike boformer.

Til tross for dette, var det flere hensyn som tilsa at det her var tale om to boenheter.

Lagmannsretten viste til at den «forventede bruken» hadde betydning for vurderingen. Ved nybyggene som ble ført opp skulle utbygger leie ut leilighetenes hoveddel og de integrerte hybeldelene: de skulle leies ut som separate utleieobjekter.

Lagmannsretten anså hoveddelen og hybeldelen av de aktuelle leilighetene som adskilte økonomiske enheter.

Lagmannsretten fant at en slik planlagt bruk tilsa at blant annet brannsikring og lydisolering bør være tilfredsstilt. Og dersom de aktuelle leilighetene anses som én boenhet, vil de aktuelle hyblene – som var planlagt benyttet som separate enheter – unntas kravene som gjelder til universell utforming og kravene til parkering og annen infrastruktur som baseres på antall husstander og boenheter.

Samtidig påpekte lagmannsretten at hensynet til omgåelse «ikke i samme grad ville gjort seg gjeldende» dersom det var tale om boliger bestående av en hoveddel og en hybeldel «som skulle selges ut til private boligeiere». I et slikt tilfelle ville hensynet til «fleksible boløsninger» fått større effekt. Lagmannsretten viste også til at slik fleksibilitet kan oppnås dersom «hele leiligheten disponeres av én (…) leietager, som kan leie ut hybeldelen, eller eventuelt leie ut denne til fremleie». Etter lagmannsrettens syn stiller dermed hensynet til omgåelse seg annerledes når det som her var tale om «bygging med sikte på utleie av to separate deler».

Lagmannsretten kunne heller ikke se at det var fremlagt langvarig, omfattende og konsekvent forvaltningspraksis med slik planlagt bruk, der helhetsvurderingen ledet til at leilighetene med utleiedel ble ansett som én boenhet.

Det var etter lagmannsretten syn heller ikke relevant for vurderingen at utleiedelene ikke var seksjonert eller at utleiedelene ikke var bygget slik at de oppfyller kravene til selvstendige boenheter.

Lagmannsretten konkluderte dermed med at det var etablert to boenheter i de aktuelle leilighetene, med den konsekvens at Statsforvalterens og kommunens vurdering var korrekt.
 

4.         Avslutning


Etter vurderingen som lagmannsretten foretok, kan det legges til grunn at klarhet ved søknader og tegninger bør etterstrebes. Eventuelle uklarheter vil som hovedregel gå utover søkeren. Det vil gjelde for leiligheter i nybygg og for leiligheter i eksisterende bebyggelse som endres.

Videre har kriteriene i SAK10 § 2-2 bokstav a) til c) ikke kun betydning for oppdeling av boenheter i eksisterende boliger – bestemmelsen er relevant også for nybygg.

Lagmannsretten vektla i helhetsvurderingen den planlagte bruken, og da at utbygger skulle leie ut leilighetene som to separate økonomiske enheter. Hensynet til omgåelse av krav som følger av plan- og bygningsloven, så som brannsikring, parkering og lignende, fikk da tyngde. Dette kan etter lagmannsrettens vurdering tilsynelatende stille seg annerledes, der den planlagte bruken knyttes til leiligheten som sådan: dersom det er planlagt utleie av hybel fra leilighetens eier som selv bor i leiligheten, kan det medføre at de aktuelle delene av leiligheten ikke anses som separate boenheter.

Lagmannsrettens dom er ikke rettskraftig.
 

 
Trenger du bistand i en lignende sak?
Fagområde(r): 
Eiendomsutvikling og næringseiendom
Kontakt Erik Hauge Danielsen